
This study transforms an existing structure on Feldeggstrasse in Zurich into an office space. The plot and building regulations put forward a framework within which a conversion's size and potential modifications are framed to suit its new function.

New retail spaces were made available in areas of the north wing of Zurich Main Station. An updated plan proposes the addition of a new food and retail area arranged around the existing atrium and allows for efficient circulation via a central staircase spanning two floors.

Given the stipulated high-rise typology and its strategic placement at the juncture of the Altstetten, Albisrieden, and Aussersihl districts, this tower design is highly visible from afar and, with its design, introduces a building form that is consistent with its urban surroundings.

The primary principle of this competition submission is the accentuation of the typological character of the existing: the urban, street-facing facade of Draht and Neudraht, a building within a park, all while preserving their core structural integrity.

In line with the Wettingen Gestaltungsplan, the project presents an updated urban identity with rhythmically structured roofscapes that improve urban connections to the adjacent railway area.

The proposal consists of two interlocking cubic volumes of differing heights. Through a shift in the footprints of the original structures, various attractive outdoor spaces are created, allowing the public to access the building from different directions.

Located in the northeastern end of the Erlenmatt district, the robust and slightly elevated building block redefines the area, impacting the city, as well as its traffic and landscape spaces.

Housed together under a large square roof, the various hall areas are compactly organized in a coherent sequence.

A cohesive and contemporary adaptive reuse unifies two connecting properties along Forchstrasse, a prominent city entryway.

This Masterplan includes analyses of both the Hürlimann and Europaallee sites, exploring their spatial potential, evaluating the firm’s needs, and proposing how to best utilize these spaces, taking into consideration the pre-existing and potential future connections between both locations.

The characteristic urban morphology of the Heuried residential district was established in the 1940s post-war building boom, when perimeter developments transitioned to housing blocks, providing park-like residential settings. The intervention's typology embodies an essentially linear design.

The Maaglive competition aims to transform the site into a lively urban center, drawing inspiration from the industrial past of one of the last remaining plots of the Zurich West development plan.

The proposal comprises a ground floor with high ceilings, a mezzanine, three typical floors, and an attic. Its generously proportioned and robust façade with an industrial aesthetic is structured with loggias on its longer side, determining the expression of this visually condensed urban building block.

The proposal converts the old Zurich military barracks into an education centre, open to public use on the ground level and developing around a new atrium space.

At Lokstadt, numerous developments are being designed: from diverse types of housing, offices, co-working spaces to hotels, gastronomy, and retail.

Roots, the vegan restaurant which also serves as the canteen for On Running’s team, is housed on the first floor of the Atmos high-rise building in Zurich West, home to 17 floors of On's offices.

Sitting on a solid base, the compactly organized building is structured with gentle tectonic offsets and visually merges with the attic.

In the expansive garden space, three structures balance one another.

This interior fit-out for On reflects the architectural logic of the building as a whole and forms a spatial link between the two different worlds of product development housed within: the “lab”, which occupies the structure’s four-storey base, and the “neighbourhoods” above, where marketing, logistics, and sales activities take place.

The Radiostudio Brunnenhof complex, located in Zurich Kreis 6, was built in two phases: the first by Otto Dürr and the second by Willy Rost and Max Bill. With the neighborhood experiencing rapid transformation, there's an increasing demand for educational spaces. Switzerland's first radio studio will be converted into a secondary school and an educational music center.

The conversion of this listed industrial building in Winterthur reinterprets its internal spatiality and opens it up towards the urban sphere.

A new neighbourhood centre offers the district Witikon a meeting place close to a church, where people can gather and exchange ideas in an easy-going manner.

To accommodate creative professionals, Spillmann Echsle's strategy for this adaptive re-use of the warehouse into an office and studio framework named "Creative Hub" considerably repairs the existing spaces by stripping away double floors, suspended ceilings, and partition walls.

A series of interventions introduce a sense of structure and organization to FREITAG's retail space in Milano.

This feasibility study explores the renovation of an existing office block and the addition of a new high-rise, evaluating the potential of a central site near Schlieren’s train station.

Sharing the same ground floor as the coffeehouse Unternehmen Mitte, Freitag Basel expands the concepts of community and collaboration.

The listed Haus Zur Sommerau stands on a ridge next to school buildings, a community center, and the Uetikon church hill. The property is defined by its large garden reminiscent of grand bourgeois residences.

The historic ABB halls in Oerlikon prevail as significant architectural testaments to Zurich's industrial past. Following a revision of updated building regulations, these halls are now permanently preserved.

Adjacent to Zurich Main Station railway tracks, the interior fit-out of Google’s Building G marks the next phase of the firm’s office expansion following the successful completion of the Sihlpost Zurich.

The first phase of the Google expansion in Zurich is Sihlpost, which has an interior fit-out over four floors for 300 workstations.

The masterplan’s brief was to examine the arrangement of the various uses of Google Zurich’s new premises on Europaallee.

On the Aussersihl area of Zurich, a proposal for the Salvation Army merges with the built context.

Responding aptly to the local architectural and topographical context, the design envisions two distinct spaces: one facing the village and the other oriented towards the landscape.

An apartment building composed of a variety of typologies, where exterior and interior are merged through generous windows.

Our proposal reenvisions the 1950s church by lightly separating the nave and better linking the building to the parish complex.

The Turgi spinning mill, considered to be the largest structure in the canton of Aargau, was the largest mill in Switzerland and stands as a testament to Switzerland’s industrial heritage.

In the renovation project an office building facing Bahnhofstrasse and a one-story plinth were preserved and refurbished. This new addition incorporates the surrounding building blocks and expands upon the original structure.

Through this intervention, the main building, the ancillary building, and the new basement are merged into one unit, while at the same time, the independent expression of the individual parts is strengthened.

A proposed training facility for a wood construction company employs a functional design on two levels, with prefab wood panels serving as structure and charred wood panels as cladding.

Villa Boveri was built in 1897 and sits amongst trees in a landscaped garden. spillmann echsle's proposal reimagines its internal arrangements.

A proposal for three housing blocks in the Weggis municipality, on Vierwaldstättersee.

The objective of this project was to conceive a highly original, creative, flexible, and adaptable working environment in order to cater to the diverse needs of Google employees.

Awarded the first prize in an invited competition, the proposal sets three distinct volumes between existing apartments and pastures.

On a plot of land at Zollikon, a new guest house is proposed as a companion to the nearby building by Alfred Debrunner.

A concert hall constructed from simple and inexpensive spruce wood was inserted as a wooden box in a former production hall. In the intermediate area outside the wooden vessel and within the industrial building’s walls, visitors see the raw and honest character of the elementary wooden construction.

Set in Shibuya, a busy shopping and fashion district, the Freitag Store Tokyo capitalizes on a unique opportunity to connect two streets and provide shopfronts on both sides.

The House of Switzerland is a mobile building that serves a diplomatic function representing Switzerland’s prfessional sporting interests, traveling to various international locations. Its wooden construction merges traditional carpentry and state of the art timber engineering.

A renovation proposal for an office building sitting between Paradeplatz and Bahnhof Enge.

A two-floor volume provides living space over the entire depth of its first floor, with a view of a lake to the north and natural sunlight from the south. On the upper floor, a carefully devised layout provides ample privacy and comfort.

In an idyllic and rural setting, a residential study explores thoughtful architectural syntheses.

As the final building in the Europaallee development, the building has an essential role: to concisely and precisely formulate an architectural connection to the rest of the development.

150 stacked containers give shape to the Boarding House in Dresden and interact with the former industrial site.

Tanzwerk houses the kinesthetic program of Switzerland’s largest dance school, dividing the space into 12 dance studios, a large performance auditorium and workrooms with various service areas.

A proposal for the refurbishment of the 1920s Henauer Witschi-designed building, marked by the insertion of a central library at its core.

The objective of this competition was to transform an existing industrial hall, turning it into an inspiring training hub for knowledge sharing for an international company.

The retained architectural essence marries the building's historical splendor with the nuances of modern residence, underscoring Spillmann Echsle's signature approach to updating historical spaces.

The architectural language of this commercial development, with a length of 135 meters follows the tradition of late 20th Century modernism along Bellerivestrasse.

A Zurich residential building from the 1950s is carefully modernized.

A temporary interior fit-out for a salsa dance school is marked by a nuanced interplay of existing elements and tailored interventions.

Formed by two interlocking buildings of varying heights, a nursing home is situated between a verdant park and the surrounding hillside terrain.

At the Zurich-Oerlikon railway bank, high-noise reduction requirements dictated the selection of a solid construction method for a new apartment building. The single-shell, exposed concrete structure houses four residential units articulated around a central core.

A residential building on Birchstrasse, built in 1921, is part of a larger neighborhood development on the edge of Oerlikon.

A cafeteria integrates two zones: a lounge, accessible 24/7, and a designated lunch space. The open module incorporates diverse elements such as a bar, kitchen, pick-up area, delivery access, and other essential infrastructure components.

The Store in Vienna seamlessly integrates into the raw architectural framework at Neubaugasse.

A prominent building on Falkenstrasse in Zurich near Stadelhofen Station has its form expanded onto the courtyard.

Located on Rue Neuve in Lausanne, the Freitag Shop displays trademark spatial concepts designed for the brand by spillmann echsle.

The existing detached single-family house, built in 1945, is set back from the street next to another property in a quiet residential area in Kilchberg, Zurich. To adapt the small house to meet the current needs of a young family, the building volume is increased to the full extent allowed under local zoning laws.

Like vectors, the differently sized rooms, ornated with balconies and bay-windows, push outwards and interlock with the urban space.

Featuring production facilities and design studios, as well as logistics and administration, the Freitag Factory accommodates over 120 employees across 10'000 square meters.

The specific morphological shape of the proposed buildings is primarily defined by a single "house" component, replicated at scale.

The design for an apartment building conversion into a bank and office space is a formal reaction to the two distinctly shaped neighboring buildings.

Aligning with the principles set forth by spillmann echsle’s global concept for all Freitag stores, the Berlin shop’s functional modules and units were seamlessly integrated into the stripped structure of a landmark building.

A wooden tunnel leading to one of the largest collections of Freitag bags north of Zurich.

spillmann echsle’s refurbishment of a former production facility prioritizes horizontal and vertical flexibility to accommodate various use cases, where the ease of installation and de-installation of the floor and partitioning elements is paramount.

The new six room construction comprises of an attic level, two main floors and an underground garage. Its formal architectural vocabulary is clear, authentic and unadorned.

A comprehensive study of three potential intervention methods for a former warehouse in Horgen, along the Lake Zurich coast.

This post-war era building is used today as a laboratory and office building on the first three floors and as duplex apartments starting from the 4th floor.

A multi-purpose hall is ideally situated at the nexus between Wittenbach, an industrial area, and the surrounding natural setting.

The Vogt House is a protected heritage building. Thoughtful spatial sequences and internal reconfigurations brought the residence up to contemporary living standards.

The renovation of a home from the 1950s offers a lesson in spatial economy.

A house sits on an incline at the periphery of Üsslingen. The home is built as a sustainable, prefabricated timber structure atop a pre-cast concrete basement.

A standardised 20-foot shipping container is transformed into a building block for an architectural intervention: A stepped tower rises 9 units up from a 5 x 2-unit base.

The proposal for a botanical institute housed in this neoclassical estate sought to improve and redefine the spatial framework.

Like a stone set among a row of hills, a monolithic structure for a sports facility in Domat Ems, Switzerland, integrates with the surrounding landscape.

Freitag's first factory was located within the Maag complex in Zurich. There, a 'structure within a structure' allowed the famous brand to upcycle, store, document and ship their bags.

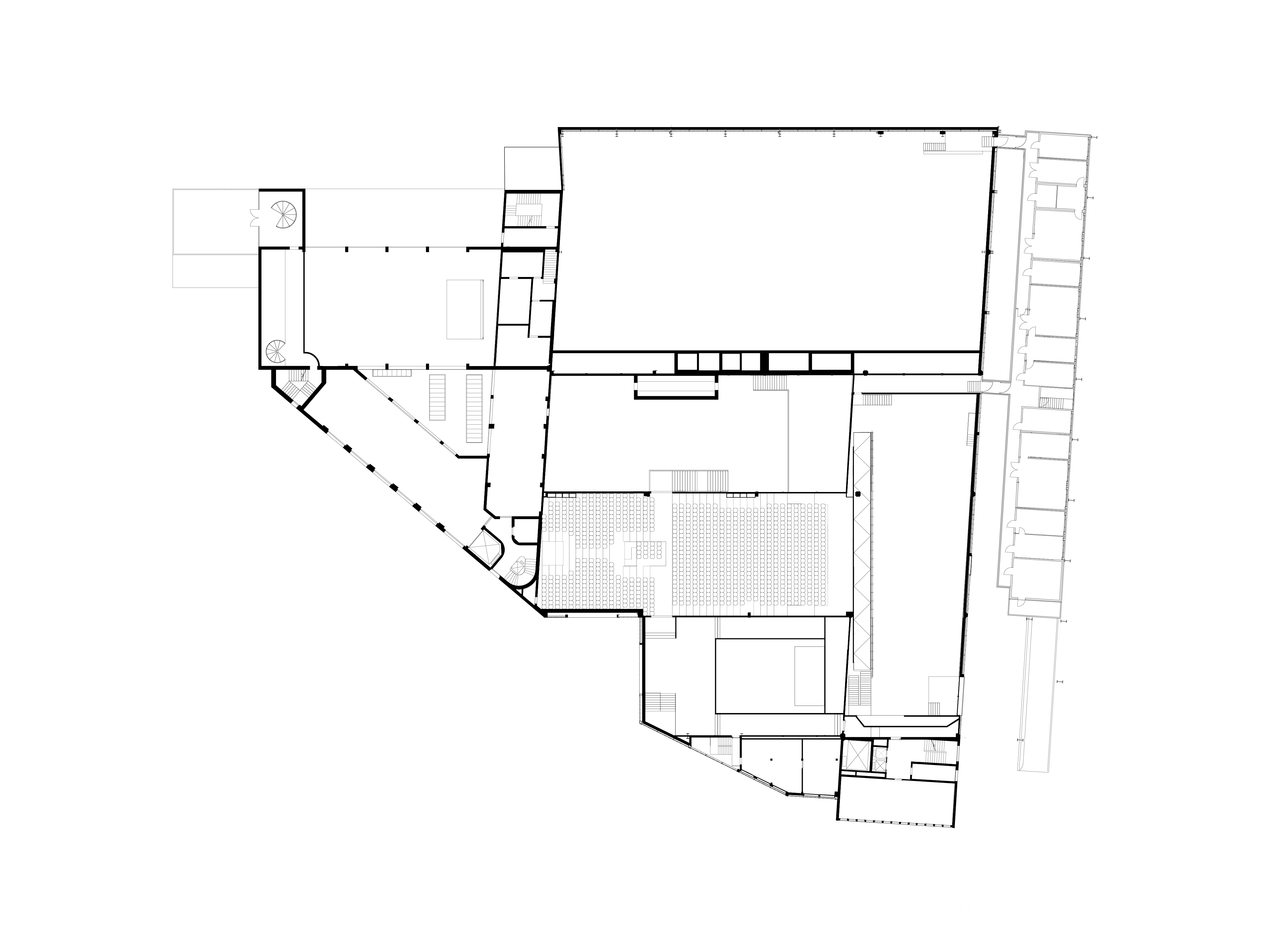
At Maag Hall, the client wanted to insert a lobby, a 1000-seat auditorium and a large stage within ten months and at low-cost.

A new structure for a multipurpose hall of a school in Switzerland seamlessly integrates between the existing primary school and community center.

The former building of the Zurich School for Music and Theater was initially built as stables for the Swiss military, formerly located on the other side of the Sihl river, at Militärkaserne.

On Englischviertelstrasse, an office conversion marks one of spillmann echsle's earliest projects, incorporating a foundational approach to design and efficient use of space through conversions.

