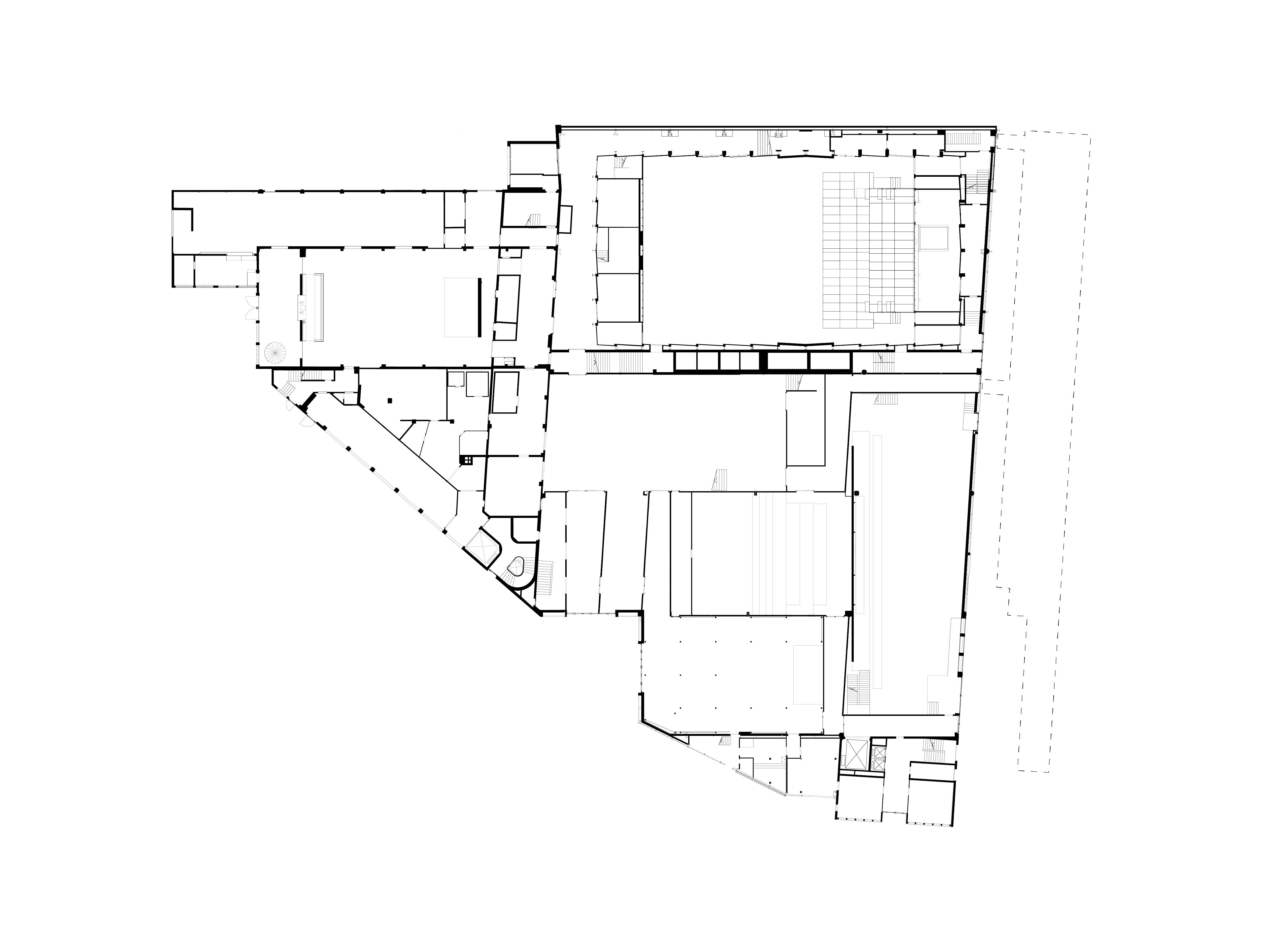
At Maag Hall, the client wanted to insert a lobby, a 1000-seat auditorium and a large stage within ten months and at low-cost.
The facade of the existing industrial hall is like an aquarium: Once inside, visitors are subtly led into different worlds. They are warmly greeted prior to their plunge into the deep blue of the lobby, where lights waver, acoustics are muffled, and expanses have been opened. Stairs, ramps and tunnels lead visitors from one room to another. Performances come to life on the stage, once the audience has entered into the consciously unpretentious auditorium. After the show, guests are guided into an area resembling a dock from where they can ascend back to the surface and get out into the stark reality of the Zurich Maag area.
moreless
Ein Foyer, ein Auditorium mit tausend Plätzen und eine möglichst grosse Bühne sollten gemäss den Vorgaben in der Maag Halle Platz finden. Und es sollte – in nur zehn Monaten mit einem Minimalbudget – eine neue Welt entstehen.
Ein glücklicher Zufall, dass diese sich im Grunde genommen durch ähnliche Elemente auszeichnet, wie sie auch die existierende Industriehalle zu bieten hat: Weite, Leere und Tiefe. Vorhandene Elemente werden sorgfältig integriert und ein Thementheater entsteht.
Schon die existierende Industriefassade der Maag Halle wird zum Aquarium. Einmal eingetreten, ist alles darauf angelegt, die Besucher sanft in verschiedene Welten zu führen. Sie werden warm empfangen, dann tauchen sie ab. Das tiefe Blau des Foyers, obskur das Licht, die Akustik dumpfer. Weite Flächen lassen Platz, stimmen ein. Nie unvermittelt betritt der Besucher einen Szenenwechsel. Über Treppen, Rampen, Tunnels gelangt man von Raum zu Raum. Im Auditorium Platz genommen, es ist bewusst unauffällig gestaltet, kann das Haupterlebnis auf der Bühne stattfinden. Die Werft, in welche die Zuschauer am Ende der Show geführt werden, einem Hafen gleich, lässt wieder auftauchen bevor sie in die nüchterne Wirklichkeit des Zürcher Maag-Areals entlassen werden.
moreless
facts
commission: Direct
program: Conversion, Culture, Hospitality
size: 8600 m²
team: Annette Spillmann, Harald Echsle, Benjamin Erdman, Martina Roth
consultants: Henauer Gugler AG; braune roth ag; Thieme Klima AG; Mibag AG