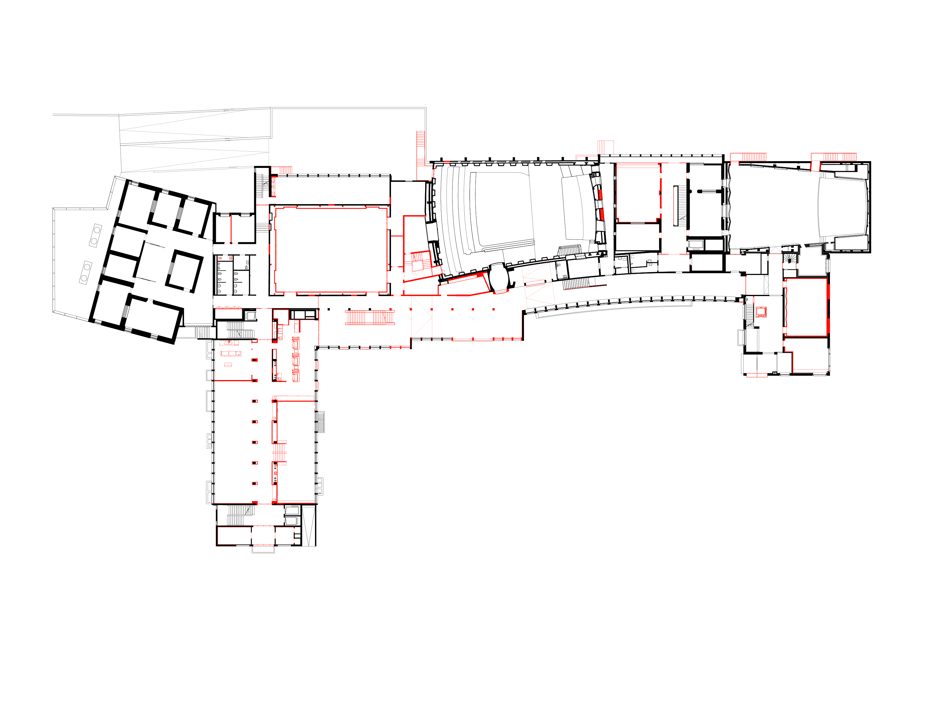
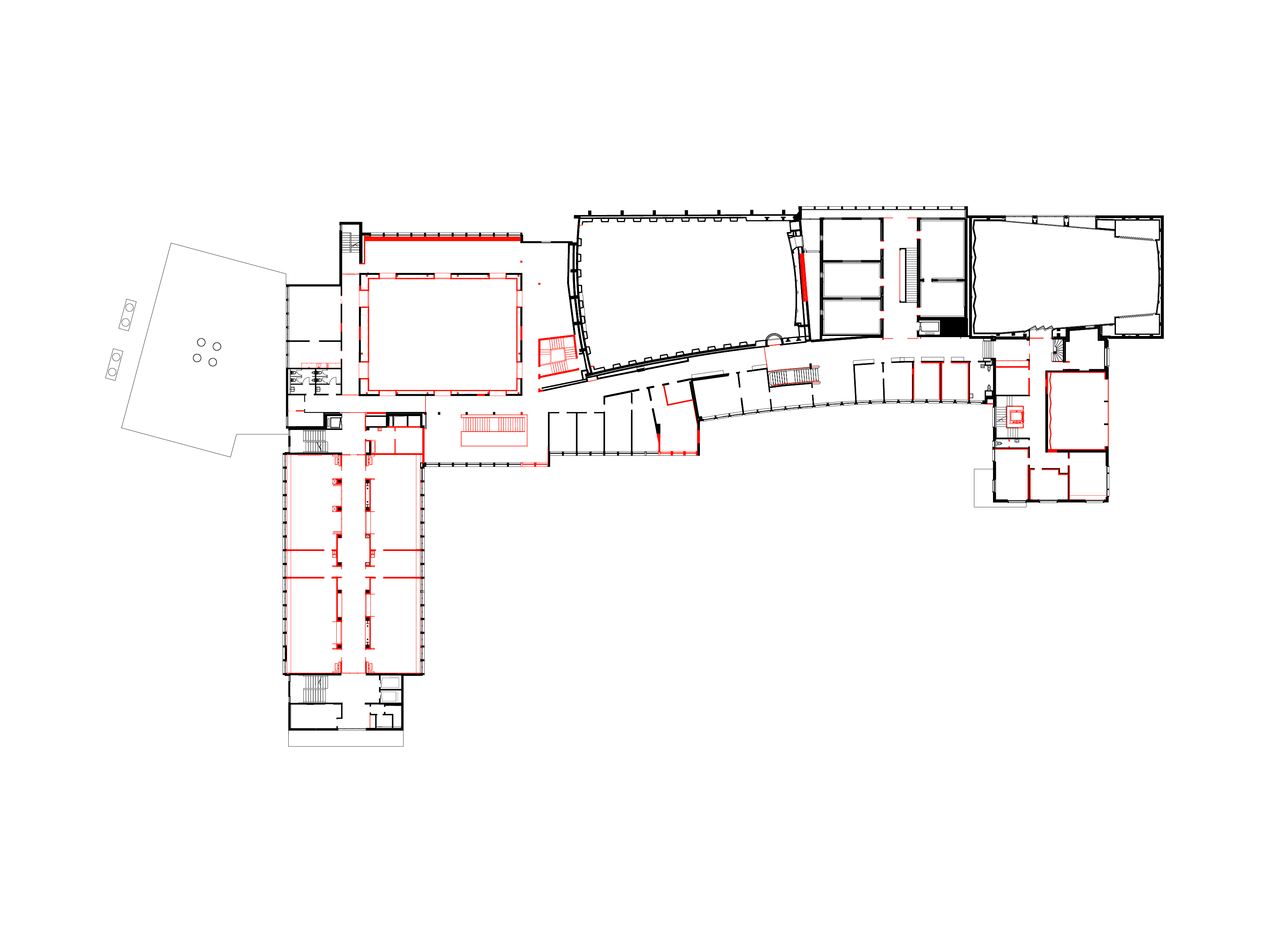
The Radiostudio Brunnenhof complex, located in Zurich’s sixth district, was built in two phases: the first by Otto Dürr from 1932–1937 and the second by Willy Rost and Max Bill in 1967 and today, parts of the complex are listed. With the surrounding Unterstrass neighbourhood experiencing rapid growth and changes, there's an increasing demand for educational spaces and associated programs such as after-school programming. Once the complex is vacated by the radio studio, the building ensemble will be converted into a secondary school and a music center.
The existing infrastructure of the complex offers a unique opportunity to establish a center with a unique mixed-use program that fulfills diverse functions and attracts diverse visitors. Thanks to its convenient location and superior acoustics, the two primary halls, former studios, are particularly ideal for use by the public school, the music school, and for hosting other municipal events.
The project's objective is to seamlessly integrate the operational requirements of an school within the existing building fabric while also increasing the legibility of the original building’s formal disposition.
To enhance accessibility, the main entrance will be renovated, welcoming students and visitors with a generous, welcoming canopy for improved orientation, on par with those of top-notch concert halls. For the music school, a series of contiguous event spaces and music rooms will form a self-contained entity, separated from the secondary school.
Secondary school students will reach their classrooms via a newly introduced staircase, leading up from the foyer. The tower, formerly a radio broadcasting hub, will provide a perfectly suitable layout for educational use: the space is to be organized into clusters, each consisting of three classrooms, two breakout rooms, and a common area, promoting contemporary educational and caregiving concepts. On the ground floor, plans include a cafeteria, a kitchen, and a terrace, meeting the requirements of an all-day school. Dedicated spaces for physical education, including a gym and an activity room, will be made available, as well.
Outside of school hours, the entire complex will remain open for public use. In the final phase, recreational outdoor areas, including sports facilities, play zones, and green spaces will be developed. Accessibility and parking lots will be optimized, and the overall landscaping will be enhanced in terms of their microclimatic conditions. Comprehensive technical improvements will be integrated throughout the facility as a whole, focusing on structural integrity, mechanical systems, and energy efficiency.









