Protected as a historic monument, the Halle 53 is one of the most striking witnesses of Winterthur's industrial history. Built in 1891 as a large foundry for Sulzer, it is, until today, the centerpiece of the present Sulzer headquarters.
Urbanistically, the large hall acts as a link between the Katharina-Sulzer-Platz in the east and the Drehscheibenplatz in the Lokstadt neighborhood.
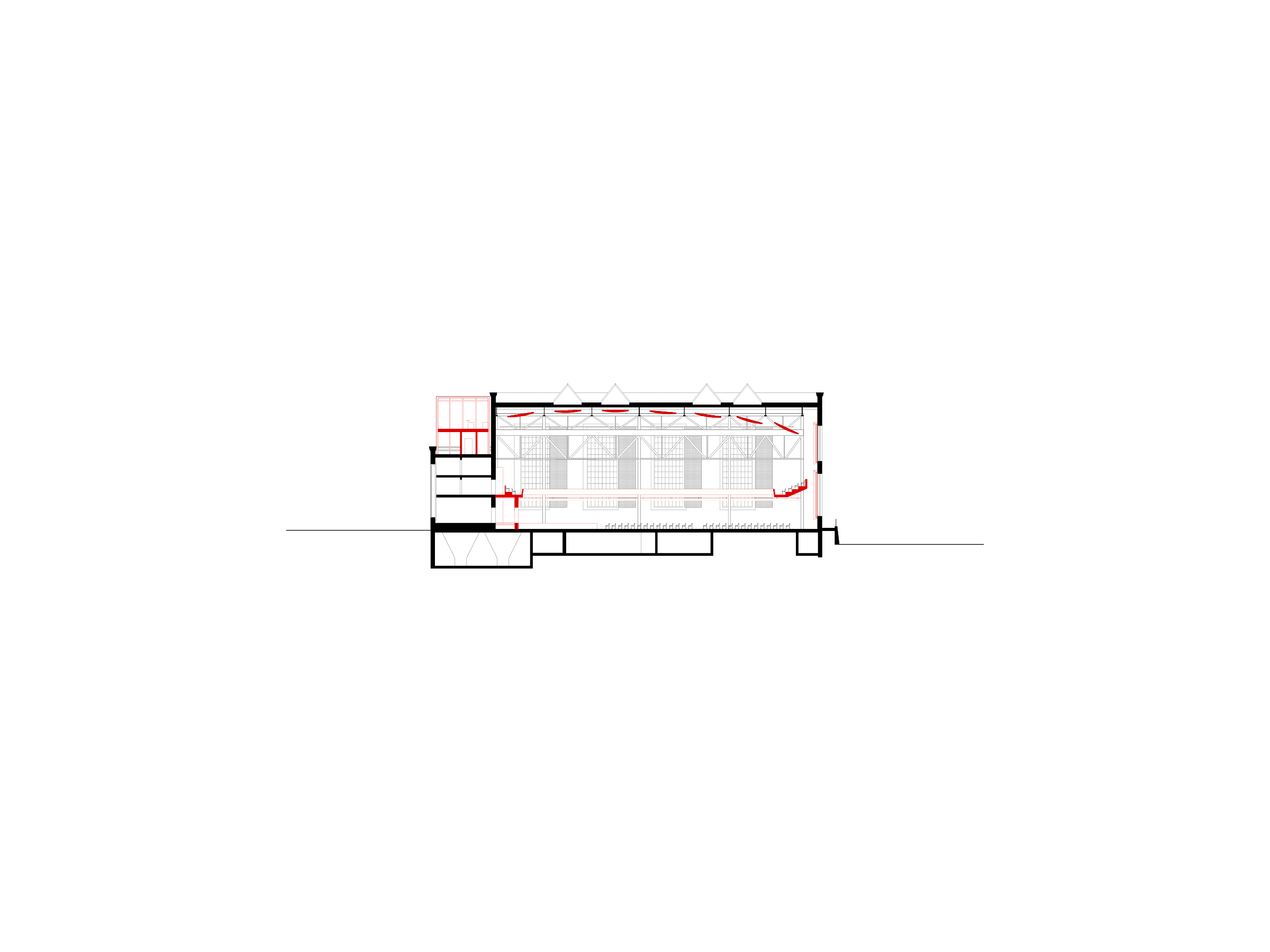
In essence, its proposed conversion consists of installing a platform in concrete cast in situ. This structure with four precisely implemented axes within the passage of the front section and the "Grande Salle" neatly dissects them into two areas, mediating the acoustic, climatic, and functional spatial demands while maintaining the visibility and experience of the "Grande Salle's" original three-aisled structure.
The unheated hall emerges as a versatile cultural structure separated from the rest of the complex. Signage on the floor creates space for a variety of scenarios and performances. At the same time, the hall is an urban and public passageway, attractively linking the two city squares.
moreless
Die denkmalgeschützte Halle 53 ist einer der eindrücklichsten Zeitzeugen der Industriegeschichte Winterthurs. Sie ist 1891 als Grossgiesserei der Sulzer erbaut worden und Herzstück des heutigen Sulzer-Areals. Städtebaulich wirkt die Grosshalle als Scharnier zwischen dem ostseitig gelegenen Katharina-Sulzer-Platz und dem Drehscheibenplatz der Lokstadt.
Die Intervention der Hallenumnutzung besteht im Wesentlichen im Einbau einer Plattform aus Ortbeton. Diese präzis in die Nahtstelle von Kopfbau und «Grande Salle» implementierte, sich über vier der bestehenden Achsen erstreckende Struktur zoniert die heutige Grosshalle in zwei Raumgefässe: einen überhohen Konzertsaal sowie eine flexibel nutzbare Kalthalle. Die Plattform reagiert als Filter auf die raumakustischen, klimatischen und räumlich funktionalen Gegebenheiten. Trotz räumlicher Intervention bleibt die Grundstruktur des Dreischiffes in der «Grande Salle» weiterhin sicht- und erlebbar.
Die Kalthalle ist ein kulturelles Gefäss, das vielseitig und auch losgelöst von der restlichen Struktur genutzt werden kann – für unterschiedlichste Szenerien und Bespielungen. Wie in einer gigantischen Mehrzweckhalle sind verschiedenste Bodenmarkierungen aufgemalt. Gleichzeitig ist dieser Grossraum ein städtisch öffentlicher Durchgang, der die beiden Stadtplätze Katharina-Sulzer- und Drehscheibenplatz attraktiv miteinander verbindet.
moreless