Created by the Pfister brothers for a 1950 design competition and inaugurated in 1952, the Balgrist Church in Zurich's Hirslanden district, occupies a prominent and elevated position close to several hospital buildings. The church serves as a sanctuary of silence and peace, and furthermore serves as a meeting place for church services, lunches, concerts, film nights, and a café which complements an idyllic garden in the summer months.
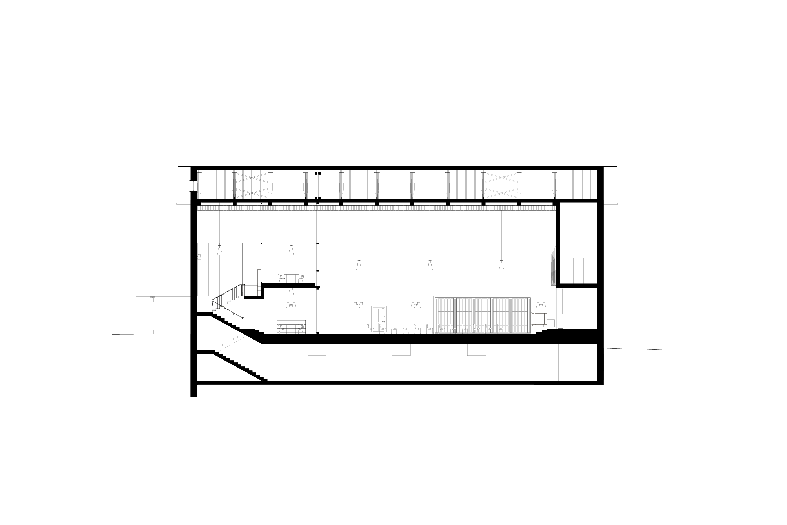
Designed for a competition, the spatial extension connects as a 5-metre-wide space to the existing gallery. This new addition appears as a large piece of wooden furniture that rests, as a room cushion, against the original stone structure. The design further introduces a layer of cupboards in a kitchenette and precisely positioned stairs, frames, and an enclosed meeting box for private discussions. Upon entering this intimate, box-like space, visitors are welcomed by an ambiance of an archaic dwelling. A generously sized skylight carved into the gable spatially references the exterior.
The ground floor of this new space can be conveniently integrated into the larger hall with the help of a mobile and foldable partition. On the floor above, meeting and seminar areas acts as a filter between the open office and individual desks. Acoustic curtains, adjustable as needed, provide controlled visibility. These curtains are adorned with abstract sun motifs, reminiscent of the building's original plasterwork.
moreless
1950 aus einem Wettbewerbsentwurf der Gebrüder Pfister hervorgegangen und 1952 eingeweiht, steht die Kirche Balgrist im Quartier Hirslanden an prominenter, erhöhter Lage in unmittelbarer Nachbarschaft zu diversen Spitalbauten in Zürich. Sie ist ein Ort der Stille und Ruhe, ein Begegnungsort mit Gottesdiensten, Mittagstisch, Konzerten und Kinoabenden sowie einem Café, das sich im Sommer in den idyllisch angelegten Garten öffnet.
Eine räumliche Erweiterung dockt als fünf Meter breite Raumschicht an die bestehende Empore an. Konzeptionell erscheint der Einbau als grosses hölzernes Möbel, das sich als Raumkissen auf die vorhandene steinerne Struktur legt und mit einer Schrankschicht im Bereich der Teeküche eine Verbindung zum Boden herstellt. Treppen, Regale und eine Meetingbox für vertrauliche Gespräche sind darin integriert. Betreten die Besuchenden diese intim anmutende Box, offenbart sich ihnen ein kleines, archaisches Haus. Ein grosses, in den Giebel eingeschnittenes Oberlicht schafft einen räumlichen Bezug zum Umraum. Betreten die Besuchenden die intim anmutende Box, offenbart sich ihnen im Inneren ein archaisches Haus. Ein grosses in den Giebel eingeschnittenes Oberlicht schafft einen räumlichen Bezug in den Umraum.
Im Erdgeschoss kann der neue Raum dank einer mobilen Faltwand unkompliziert zum Grossraum hin geöffnet werden. Im Obergeschoss wirkt eine gläserne Besprechungs- und Seminarzone als Filter zwischen Grossraum und Büroarbeitsplätzen. Die Einsicht wird situativ mit akustisch wirksamen Vorhängen gesteuert. Diese nehmen ein im Putz des Bestandes vorhandenes Motiv abstrakter Sonnen auf.
moreless